Get discounts,
promos, see our
newest plans
and more!
+ 15% off any plan
See terms opt out anytime


No Thanks

Thanks for
signing up!


Use Code:

SIGNUP15

And save 15% off any plan!

Check your email for details.

CLOSE
Search Plans
     
20% Off House Plans Sitewide Ends Tuesday
20% Off House Plans Sitewide Ends Tuesday
20% Off House Plans Sitewide Ends Tuesday

Code: VET20
Sale ends midnight 11/11/2025 PST

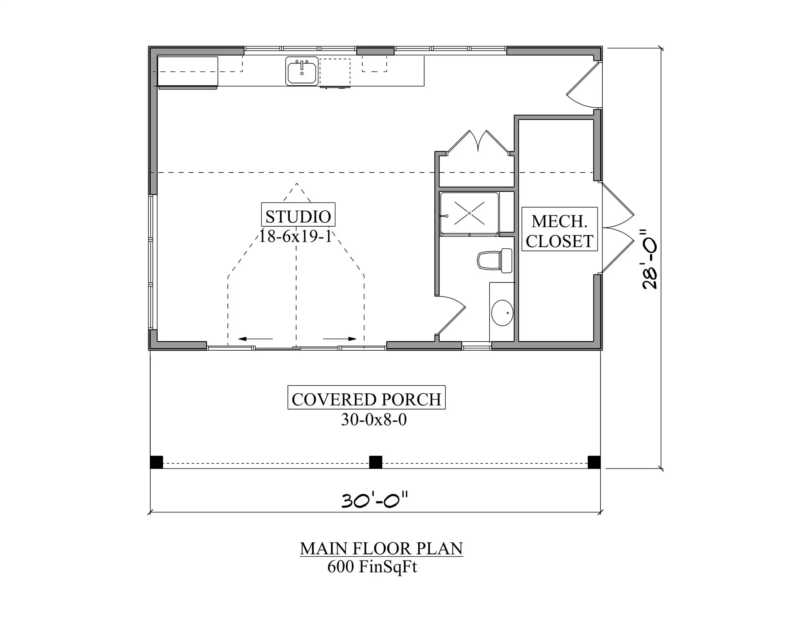
Ridgelea | Affordable Studio Cottage ADU, Plan 10920

 
 

Sq Ft
600 FT²

Beds
0

Baths
1

Stories
1

Garage
0

Depth
28'

Width
30'
On Sale
$1,160.00
$1,450.00
© copyright by designer
 View All 3 Images | Photographs may reflect modified home
Sq Ft
600 FT²
Beds
0
Baths
1
Stories
1
Garage
0
Depth
28'
Width
30'
 
Click to Zoom In on Floor Plan
© copyright by designer
 
 

About This Plan

Looking to make a flexible addition to your property? See if Plan 10920 could be the right fit! This cottage-style ADU offers 600 square feet on one level, complete with a kitchenette, a full bath, and open space you could use for living, working, or hosting guests. This charming design also includes a full-width covered front porch and a live dormer that creates a bright effect inside! 

See All Plan Options
 

FEATURES & DETAILS

Bedroom features
Primary Bdrm Main Floor
Exterior features
Covered Front Porch
Lot Options
Suited for narrow lot
Additional features
Great Room
Open Floor Plan
Garage Options
None
840 Ft
2
Total Structure
600 Ft
2
Unit Heated
1
Bathrooms
0
Garage
1
Stories
30' 0"
Width
28' 0"
Depth
18' 6"
Height
2x6
Framing
Truss
Roof Framing
8/12
Primary Roof Pitch
6/12
Secondary Roof Pitch
Apartment
Dwelling Number
None
Bonus Access

Unheated Living Space
240 Ft
2
Front Porch
 

Plan Package Options

 Select Plan Package
Sale: $1,160
PDF Single Build
$1,450

Digital plans emailed to you in PDF format that allows for printing copies and sharing electronically with contractors, subs, decorators, and more. This package includes a license to build the home one time.

Sale: $1,160
Sale: $1,700
PDF Unlimited Build
$2,125

Digital plans with an unlimited build license emailed in PDF format, that allows for printing copies on a home printer or local print shop and sharing with contractors, subs, decorators and more 

Sale: $1,700
Sale: $2,200
CAD + PDF Single Build
$2,750

CAD files are a complete set of construction drawings delivered electronically. They can be used for any type of modification—including major design changes and engineering—and include a release granting permission to modify the plan. Most CAD plan orders are emailed the same or next business day.
 
This package also comes with a PDF set of plans and a copyright release for making modifications and printing unlimited copies.
 
CAD files are provided in .dwg format. For details on the specific CAD program used, please refer to the PLAN DETAILS section located above the floor plan on each plan’s page.

Sale: $2,200
Sale: $3,260
CAD Unlimited Build
$4,075
CAD files are a complete set of construction drawings delivered electronically. They can be used for any type of modification—including major design changes and engineering—and include a release granting permission to modify the plan. Most CAD plan orders are emailed the same or next business day. CAD files are provided in .dwg format. For details on the specific CAD program used, please refer to the PLAN DETAILS section located above the floor plan on each plan’s page.
Sale: $3,260
 Need To Reverse Plan? (Optional)
$245
Readable Reverse

Reverse house plans with readable text and dimensions 

$245
  Select Foundation Option
  Add-Ons (Optional)
INCLUDED WITH YOUR PURCHASE

Free Ground shipping in the Continental U.S.

FREE

Design consultation with the architect or designer to discuss your plan

Home Building & Product Ideas Organizer

Sub Total
$0
Free Shipping
QUESTIONS OR NEED HELP ORDERING? LIVE CHAT OR CALL US AT 866-214-2242
Plan Packages

Each set of construction documents includes detailed, dimensioned floor plans, basic electric layouts, cross sections, roof details, cabinet layouts and elevations, as well as general IRC specifications. They contain virtually all of the information required to construct your home. The typical plan set does not include any plumbing, HVAC drawings, or engineering stamps due to the wide variety of specific needs, local codes, and climatic conditions. These details and specifications are easily obtained from your builder, contractors, and/or local engineers.

BEST PRICE GUARANTEE

find the same house plan (modifications included!) and package for less on another site, show us the URL and we'll give you the difference plus an additional 5% back.

100% SATISFACTION GUARANTEE

We offer a one-time, 30-day exchange policy for unused, non-electronic plan packages in the event you aren't satisfied with your first selection.

 
 

Plan 10920  Back to plan page

Loading...